- Tyyppi:
- Liikehuoneisto Toimitila
- Pinta-ala
- 90 m² + n. 122 m²
- Muut kulut
- Vesi ja sähkö kulutuksen mukaan.
- Kunto
- Siisti toiminnallinen kunto!
- Vapautuu
- Heti vapaa!
- Lisätieto
- Vastaavanlaisia kokonaisuuksia on harvoin vuokrattavana!
Kohteen kuvaus
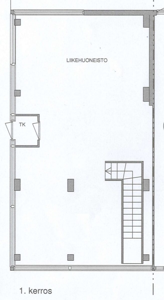
Vuokrattavana toimitila 90 m² ja tilava alakerta
Siistikuntoinen katutason liiketila.
Huoneiston suuret näyteikkunat luovat toimitilaan valoisuutta.
Katutason liiketilan pinta-ala on yhtiöjärjestyksen mukaan 90 m².
Lisäksi toimitilan alapuolella on tilava ja korkea alakerta n. 122 m² (ulkomitat), jossa on wc / suihku ja erillinen wc sekä minikeittiö ja työtiloiksi soveltuvaa tilaa.
Tämä toimitila soveltuu monenlaiseen toimintaan.
Liikehuoneistolla on hyvä sijainti ja erinomainen huomionarvo vilkkaasti liikennöidyn Humalistonkadun ja Läntinen Pitkäkadun kulmassa.
Fölin pysäkki on edessä.
Tähän kannattaa ehdottomasti tutustua!
Tiedustelut ja esittelyt puh. 0440 245 600 / Ismo Koskinen, ismo.koskinen@kaupunki.com
www.kaupunki.com
Varusteet
- Aidattu
- Alakerta
- Aurajoki näkymä
- Aurajoki-näkymä
- Aurinkokeräimet
- Autohallipaikka
- Autokatos
- Autonpesupaikka
- Autopaikat
- Autopaikka
- Autotalli
- Avokeittiö
- Erillinen käyntiovi
- Esteetön kulku
- Hätäpoistumistie
- Hiekanerotuskaivo
- Hissi
- Holveja 2kpl
- Holvi
- Huone
- Huoneet
- Huoneita
- Ikkuna
- Ilma-vesilämpöpumppu
- Ilma-vesilämpöpumppujärjestelmä
- Ilmalämpöpumppu
- Ilmalämpöpumppuja
- Ilmanvaihto
- Inva-WC
- Iso näyteikkuna
- Jäähdytys
- jossa ikkuna
- Kauko-ohjattava portti
- Kauko-ohjattava sähkökäyttöinen nosto-ovi
- Kauko-ohjattavat portit
- Kaukolämpö
- Keittiö
- Keittiö ja wc yhteiskäytössä
- Keittiö yhteiskäytössä
- Keittokomero
- Keittosyvennys
- Kellarikomero ja kylmäsäilytys
- Korkea hallitila
- Korkea nosto-ovi
- Korkea varastotila
- Korkeat huoneet
- Kph / wc
- Kuituyhteys
- Kylpyhuone
- Kylpyhuone / WC
- Laajakaista
- lasit
- Lasitettu parveke
- Lastauslaituri
- Lattiakaivo
- Lattialämmitys
- Maa-alue
- Maalämpö
- Metsäinen kiinteistö
- Minikeittiö
- Näyteikkuna
- Neuvottelutila
- Nosto-ovi
- Nosto-ovi käyntiovella
- Öljylämmitys
- Öljyn- ja hiekanerotuskaivo
- Osuus yhteiseen venevalkamaan
- Osuus yhteiseen vesialueeseen
- Ovi
- Pariovet
- Parveke
- Parvitila
- Patio
- Piirustukset valmiina
- Portti
- Pressuhalli
- Puhallin
- Rakennuslupa valmiina
- Rakennuspaikka
- Ranskalainen parveke
- Sähkö
- Sähkökäyttöinen
- Sähkökäyttöinen nosto-ovi
- Sähkölämmitys
- Sähköportit
- Sähköportti
- Sauna
- sauna ja wc
- Saunaosasto
- Siivouskomero
- Siltanostureita
- Sisäänkäynti porrashuoneen kautta
- Sosiaalitilat
- Suihku
- Takaovi
- Tilava ikkunallinen parvi
- Toimisto
- Toimistohuoneita
- Tupakkahuone
- Tuulikaappi
- Ulkopesupaikka
- Vaatehuone
- Väestönsuoja
- Valmistuskeittiö
- Varasto
- Vesipiste
- Viilennys
- WC
- WC ja suihku
- WC valmius
- WC:n ja suihkun käyttömahdollisuus
- WC:n käyttömahdollisuus
- Yläkerta





