Kalustekatu 5, 21280 Raisio
- Tyyppi
- Hallitila Toimitila Tuotantotila Varastotila
- Rakennus vuosi
- 2011
- Pinta-ala
- 1.678 kem²
- Tontin pinta-ala
- 4.876 m²
- Tontin omistus
- Oma tontti
- Muut kulut
- Sähkö ja vesi kulutuksen mukaan.
- Kunto
- Hyvä kunto!
- Vapautuu
- 1.9.2026 / sopimuksen mukaan!
- Lisätieto
- Vastaavanlaisia kokonaisuuksia on todella harvoin myytävänä!
Hinta
Ota yhteyttä
Kohteen kuvaus
MYYTÄVÄNÄ HIENO TOIMITILARAKENNUS OMALLA TONTILLA!
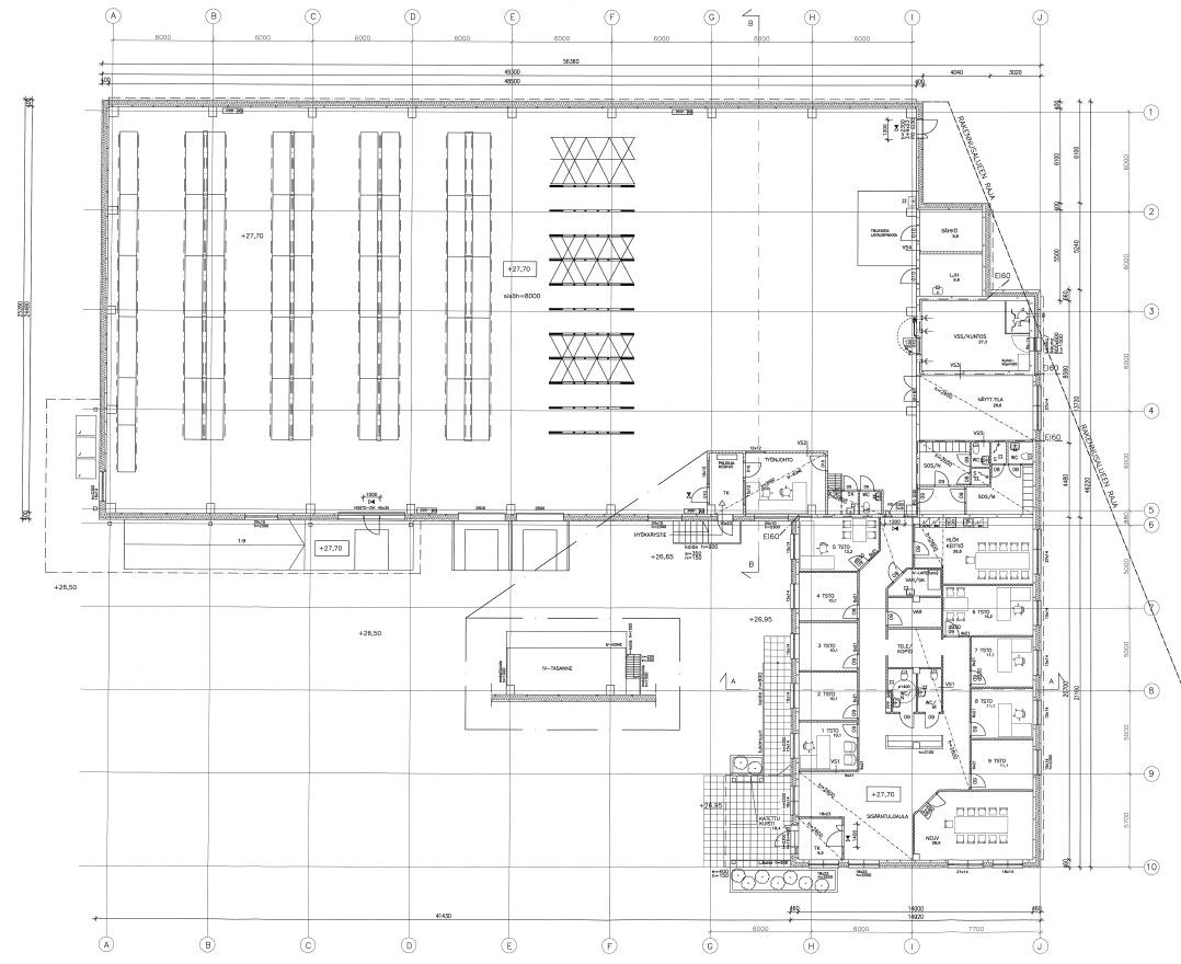
Myytävänä toimitilakiinteistö keskeisellä paikalla Raision Haunisten alueella. Kiinteistöllä sijaitsee n. 1.678 kem²:n betonirakenteinen toimisto- ja varastokäytössä oleva rakennus, joka on valmistunut vuonna 2011. Rakennus sopii myös tuotantoon sekä sijaintinsa puolesta vaikka liiketilaksi.
Kiinteistöä on vuosien saatossa huolellisesti pidetty ja rakennusta on hyvin huollettu. Kiinteistö on hyvässä kunnossa. Tontilla sijaitsee PlugIt latauspiste 2:lle sähköautolle sekä autokatos, jossa ajastimella varustetut sähköpistokepaikat 7:lle autolle. Lisäksi pihan autopaikkoja on varustettu sähköpistokkeilla.
Oma, tilava 4.876 m²:n tontti, joka on aidattu ja varustettu kahdella sisäänajoportilla.
Rakennuksessa on 8 m korkeaa tuotanto- / varastotilaa n. 1.326 m².
Hallitilaan on kiinteä käynti maantasolta lastauslaiturin kautta sekä 2 erillistä lastaustaskua.
Lisäksi rakennuksessa on toimistotilaa n. 352 m².
Rakennuksen kaikki tilat ovat 1-tasossa. Hallitilan ja toimistotilan välissä on sosiaalitila ja tekniset tilat sekä väestönsuoja.
Kauppaa sisältyy mm. monipuolinen trukkilavahyllyjärjestelmä, jossa n. 1.500 lavapaikkaa. Lisäksi mm. trukit on erikseen ostettavissa kiinteistökaupan yhteydessä.
Rakennuksessa on kaukolämpö ja lämmönjakelu tapahtuu hallitilaan puhaltimin ja toimistotiloihin patterein.
Rakennuksessa on koneellinen ilmanvaihto lämmöntalteenotolla. Toimistotiloissa on myös jäähdytys.
Kiinteistö sijaitsee hyvällä paikalla Raisiossa, monipuolisella kauppakeskittymä alueella lähellä Kehätietä. Kohteeseen on hyvät ja nopeat liikenneyhteydet.
TÄHÄN KANNATTAA EHDOTTOMASTI TUTUSTUA!
Tiedustelut ja esittelyt puh. 0440 245 600 / Ismo Koskinen, ismo.koskinen@kaupunki.com
www.kaupunki.com
Varusteet
- Aidattu
- Alakerta
- Aurajoki näkymä
- Aurajoki-näkymä
- Aurinkokeräimet
- Autohallipaikka
- Autokatos
- Autonpesupaikka
- Autopaikat
- Autopaikka
- Autotalli
- Avokeittiö
- Erillinen käyntiovi
- Esteetön kulku
- Hätäpoistumistie
- Hiekanerotuskaivo
- Hissi
- Holveja 2kpl
- Holvi
- Huone
- Huoneet
- Huoneita
- Ikkuna
- Ilma-vesilämpöpumppu
- Ilma-vesilämpöpumppujärjestelmä
- Ilmalämpöpumppu
- Ilmalämpöpumppuja
- Ilmanvaihto
- Inva-WC
- Iso näyteikkuna
- Jäähdytys
- jossa ikkuna
- Kauko-ohjattava portti
- Kauko-ohjattava sähkökäyttöinen nosto-ovi
- Kauko-ohjattavat portit
- Kaukolämpö
- Keittiö
- Keittiö ja wc yhteiskäytössä
- Keittiö yhteiskäytössä
- Keittokomero
- Keittosyvennys
- Kellarikomero ja kylmäsäilytys
- Korkea hallitila
- Korkea nosto-ovi
- Korkea varastotila
- Korkeat huoneet
- Kph / wc
- Kuituyhteys
- Kylpyhuone
- Kylpyhuone / WC
- Laajakaista
- lasit
- Lasitettu parveke
- Lastauslaituri
- Lattiakaivo
- Lattialämmitys
- Maa-alue
- Maalämpö
- Metsäinen kiinteistö
- Minikeittiö
- Näyteikkuna
- Neuvottelutila
- Nosto-ovi
- Nosto-ovi käyntiovella
- Öljylämmitys
- Öljyn- ja hiekanerotuskaivo
- Osuus yhteiseen venevalkamaan
- Osuus yhteiseen vesialueeseen
- Ovi
- Pariovet
- Parveke
- Parvitila
- Patio
- Pesukoneliitäntä
- Piirustukset valmiina
- Portti
- Pressuhalli
- Puhallin
- Rakennuslupa valmiina
- Rakennuspaikka
- Ranskalainen parveke
- Sähkö
- Sähkökäyttöinen
- Sähkökäyttöinen nosto-ovi
- Sähkölämmitys
- Sähköportit
- Sähköportti
- Sauna
- sauna ja wc
- Saunaosasto
- Siivouskomero
- Siltanostureita
- Sisäänkäynti porrashuoneen kautta
- Sosiaalitilat
- Suihku
- Takaovi
- Tilava ikkunallinen parvi
- Toimisto
- Toimistohuoneita
- Tupakkahuone
- Tuulikaappi
- Ulkopesupaikka
- Vaatehuone
- Väestönsuoja
- Valmistuskeittiö
- Varasto
- Vesipiste
- Viilennys
- WC
- WC ja suihku
- WC valmius
- WC:n ja suihkun käyttömahdollisuus
- WC:n käyttömahdollisuus
- Yläkerta








