Pajakatu 3, 21280 Raisio
- Tyyppi
- Hallitila Toimitila Tuotantotila Varastotila
- Rakennus vuosi
- Valmistunut 1999 ja laajennettu 2014
- Pinta-ala
- n. 590 m²
- Tontin pinta-ala
- 2.147 m²
- Muut kulut
- Sähkö ja vesi kulutuksen mukaan
- Kunto
- Siisti kunto!
- Vapautuu
- Sopimuksen mukaan!
- Lisätieto
- Lämmönlähteenä on maalämpö.
Hinta
Ota yhteyttä
Kohteen kuvaus
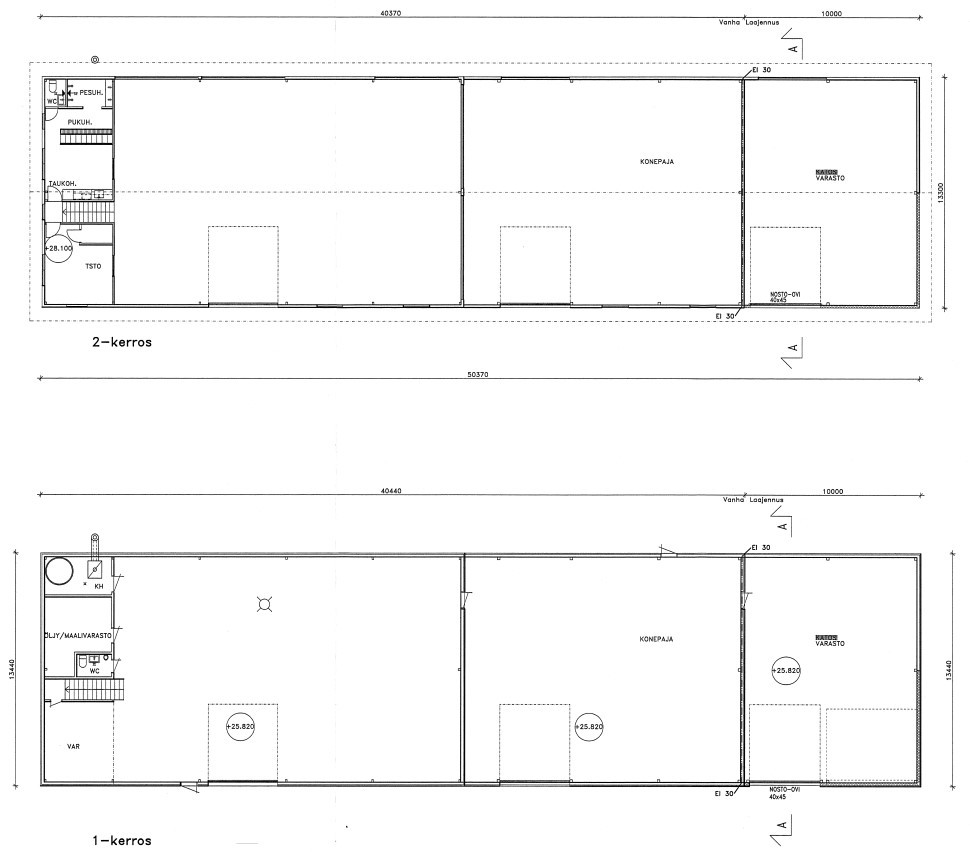
Vuokrattavana toimitila n. 590 m²
Hyvä keskeinen sijainti Raision Kuninkojalla.
Vuokrattavan hallitilan pinta-ala on yhteensä n. 590 m², joka muodostuu avonaisesta hallitilasta sekä pienestä toimisto- ja sosiaalitilasta.
Hallitilaan on käynti kahdesta nosto-ovesta ja erillisestä käyntiovesta.
Rakennuksessa on maalämpö ja lisäksi öljylämmitys on säästetty varajärjestelmäksi.
Hallirakennuksen kokonaispinta-ala on yhteensä n. 730 m² ja se on jaettu kahteen osaan, isompaan osaan n. 590 m², joka on nyt vuokrattavana.
Pienempi osa on rakennuksen päädyssä oleva n. n. 140 m²:n hallitila, joka on toiminut varastona ja se on mahdollisesti myöhemmin vuokrattavissa.
Rakennus on valmistunut 1999 ja laajennettu 2014.
Hallirakennus on mahdollista jakaa kolmeksi erilliseksi toimitilaksi, jolloin jokaisella on oma nosto-ovi. Lisäksi rakennukseen on kaksi erillistä käyntiovea. Yhdessä hallitilassa on lattiakaivo. Hallirakennuksen korkeus on n. 5 m.
Rakennus vapautuu sopimuksen mukaan.
Kohteen postiosoite on Pajakatu 3, 20320 Turku.
Tähän kannattaa ehdottomasti tutustua!
Tiedustelut ja esittelyt puh. 0440 245 600 / Ismo Koskinen, ismo.koskinen@kaupunki.com
www.kaupunki.com
Varusteet
- Aidattu
- Alakerta
- Aurajoki näkymä
- Aurajoki-näkymä
- Aurinkokeräimet
- Autohallipaikka
- Autokatos
- Autonpesupaikka
- Autopaikat
- Autopaikka
- Autotalli
- Avokeittiö
- Erillinen käyntiovi
- Esteetön kulku
- Hätäpoistumistie
- Hiekanerotuskaivo
- Hissi
- Holveja 2kpl
- Holvi
- Huone
- Huoneet
- Huoneita
- Ikkuna
- Ilma-vesilämpöpumppu
- Ilma-vesilämpöpumppujärjestelmä
- Ilmalämpöpumppu
- Ilmalämpöpumppuja
- Ilmanvaihto
- Inva-WC
- Iso näyteikkuna
- Jäähdytys
- jossa ikkuna
- Kauko-ohjattava portti
- Kauko-ohjattava sähkökäyttöinen nosto-ovi
- Kauko-ohjattavat portit
- Kaukolämpö
- Keittiö
- Keittiö ja wc yhteiskäytössä
- Keittiö yhteiskäytössä
- Keittokomero
- Keittosyvennys
- Kellarikomero ja kylmäsäilytys
- Korkea hallitila
- Korkea nosto-ovi
- Korkea varastotila
- Korkeat huoneet
- Kph / wc
- Kuituyhteys
- Kylpyhuone
- Kylpyhuone / WC
- Laajakaista
- lasit
- Lasitettu parveke
- Lastauslaituri
- Lattiakaivo
- Lattialämmitys
- Maa-alue
- Maalämpö
- Metsäinen kiinteistö
- Minikeittiö
- Näyteikkuna
- Neuvottelutila
- Nosto-ovi
- Nosto-ovi käyntiovella
- Öljylämmitys
- Öljyn- ja hiekanerotuskaivo
- Osuus yhteiseen venevalkamaan
- Osuus yhteiseen vesialueeseen
- Ovi
- Pariovet
- Parveke
- Parvitila
- Patio
- Pesukoneliitäntä
- Piirustukset valmiina
- Portti
- Pressuhalli
- Puhallin
- Rakennuslupa valmiina
- Rakennuspaikka
- Ranskalainen parveke
- Sähkö
- Sähkökäyttöinen
- Sähkökäyttöinen nosto-ovi
- Sähkölämmitys
- Sähköportit
- Sähköportti
- Sauna
- sauna ja wc
- Saunaosasto
- Siivouskomero
- Siltanostureita
- Sisäänkäynti porrashuoneen kautta
- Sosiaalitilat
- Suihku
- Takaovi
- Tilava ikkunallinen parvi
- Toimisto
- Toimistohuoneita
- Tupakkahuone
- Tuulikaappi
- Ulkopesupaikka
- Vaatehuone
- Väestönsuoja
- Valmistuskeittiö
- Varasto
- Vesipiste
- Viilennys
- WC
- WC ja suihku
- WC valmius
- WC:n ja suihkun käyttömahdollisuus
- WC:n käyttömahdollisuus
- Yläkerta







